Kreativ. Urban. Schanze.
Kreativ. Urban.Schanze.
Mitten im urbanen Umfeld der Sternschanze bietet das Paulihaus moderne, flexibel nutzbare Flächen in einem architektonisch klar gestalteten Neubau.
Sichtbar. Vielseitig. Nutzbar.
Mitten im urbanen Umfeld der Sternschanze bietet das Paulihaus moderne, flexibel nutzbare Flächen in
einem architektonisch klar gestalteten Neubau.
Die zentrale Lage, hohe Sichtbarkeit und ein belebtes Umfeld schaffen ideale Voraussetzungen für vielfältige Nutzungsideen – von kreativen Konzepten über urbane Dienstleistungen bis hin zu belebender Gastronomie oder individuellen Handelsformaten. Ein Ort für Mieter, die das Quartier bereichern und den Standort aktiv mitgestalten möchten.
Sichtbar. Vielseitig. Nutzbar.
Mitten im urbanen Umfeld der Sternschanze bietet das Paulihaus moderne, flexibel nutzbare Flächen in
einem architektonisch klar gestalteten Neubau.
Die zentrale Lage, hohe Sichtbarkeit und ein belebtes Umfeld schaffen ideale Voraussetzungen für vielfältige Nutzungsideen – von kreativen Konzepten über urbane Dienstleistungen bis hin zu belebender Gastronomie oder individuellen Handelsformaten. Ein Ort für Mieter, die das Quartier bereichern und den Standort aktiv mitgestalten möchten.
St. Pauli ist mehr als ein Stadtteil – es ist Haltung, Vielfalt und kreativer Puls.
Zwischen Reeperbahn, Schanze und Hafen verschmelzen Kultur, Gewerbe und Szene zu einem einzigartigen urbanen Kosmos. Genau hier setzt das Paulihaus an: als moderner Arbeitsort mit offenen Strukturen, klarer Architektur und echtem Stadtgefühl. Zentral gelegen, bestens angebunden und eingebettet in ein Quartier, das lebt, denkt und sich stetig weiter- entwickelt.
St. Pauli ist mehr als ein Stadtteil – es ist Haltung, Vielfalt und kreativer Puls.
Zwischen Reeperbahn, Schanze und Hafen verschmelzen Kultur, Gewerbe und Szene zu einem einzigartigen urbanen Kosmos. Genau hier setzt das Paulihaus an: als moderner Arbeitsort mit offenen Strukturen, klarer Architektur und echtem Stadtgefühl. Zentral gelegen, bestens angebunden und eingebettet in ein Quartier, das lebt, denkt und sich stetig weiter- entwickelt.
Mitten im Viertel. Zentral in St. Pauli.
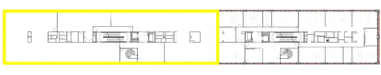
EG 1
Markante Ecklage mit hoher Visibilität und viel Tageslicht
- Mietfläche: ca. 260 m²
- Besonderheit: Verbindung mit EG 2 Fläche möglich
- Verfügbarkeit: ab sofort
- Mietpreis: auf Anfrage
- Provision: provisionspflichtig
- Lichte Raumhöhe: ca. 4,55 m
- Decke: Betondecke roh mit Sichtinstallation
- Bodenbelag: Estrich
- Sanitär: vorgerüstet
- Elektro: Starkstrom
- Lüftung: mieterseits
EG 2
Charmante und vielseitig nutzbare Mietfläche
- Mietfläche: ca. 200 m²
- Besonderheit: Verbindung mit EG 1 Fläche möglich
- Verfügbarkeit: ab sofort
- Mietpreis: auf Anfrage
- Provision: provisionspflichtig
- Lichte Raumhöhe: ca. 4,55 m
- Decke: Betondecke roh mit Sichtinstallation
- Bodenbelag: Estrich
- Sanitär: vorhanden
- Elektro: Starkstrom
- Lüftung: mieterseits
EG 3
Attraktive Café-Fläche mit breiter Fensterfront
- Mietfläche: ca. 186 m²
- Verfügbarkeit: ab sofort
- Mietpreis: ab 20,00 €/m2
- Provision: provisionspflichtig
- Lichte Raumhöhe: ca. 3,50 m
- Deckensegel: Baffeldecke
- Beleuchtung: LED-Lichtleisten
- Sanitär: vorhanden
- Küche: vorgerüstet
- Kühlung: vorhanden
- Abluft: vorhanden
EG 4
Minimale Fläche, maximale Wirkung
- Mietfläche: ca. 47 m²
- Verfügbarkeit: ab sofort
- Mietpreis: ab 20,00 €/m²
- Provision: provisionspflichtig
- Lichte Raumhöhe: ca. 4,55 m
- Decke: Betondecke roh
- Bodenbelag: Estrich
- Sanitär: vorhanden
- Pantry: vorgerüstet
- Zuluft: Fassadenlüfter
- Abluft: über Lager/Küche und WC
1. OG links
Moderne Bürofläche sucht neuen Mieter
- Mietfläche: ca. 1.007 m²
- Mietpreis: ab 23,00 €/m²
- NK-Vorauszahlung: 4,50 €/m2
- Verfügbarkeit: ab sofort
- Flexible Grundrissgestaltung (Achsmaß 1,35 m)
- Hohlraumboden für flexible Verkabelung (Cat7 und Glasfaseranschluß vorhanden)
- Hochwertige Bodenbeläge
- Teilbereiche mit Glastrennwänden und Glastüren
- Betonrohdecken für einen modernen Look mit integrierter Betonkerntemperierung
- Zentrale mechanische Be- und Entlüftung der Büroflächen
1. OG rechts
Bezugsfertige Bürofläche mit flexibler Laufzeit
- Mietfläche: 565 m²
- Mietpreis: ab 23,50 €/m²
- NK-Vorauszahlung: 4,50 €/m²
- Verfügbarkeit: ab sofort
- Flexible Grundrissgestaltung (Achsmaß 1,35 m)
- Hohlraumboden für flexible Verkabelung (Cat7 und Glasfaseranschluß vorhanden)
- Hochwertige Bodenbeläge
- Teilbereiche mit Glastrennwänden und Glastüren
- Betonrohdecken für einen modernen Look mit integrierter Betonkerntemperierung
- Zentrale mechanische Be- und Entlüftung der Büroflächen
3. OG links
Moderne Bürofläche mit Weitblick
- Mietfläche: ca. 1.022 m²
- Mietpreis: ab 26,00 €/m²
- NK-Vorauszahlung: 4,50 €/m²
- Verfügbarkeit: ab sofort
- Flexible Grundrissgestaltung (Achsmaß 1,35 m)
- Hohlraumboden für flexible Verkabelung (Cat7 und Glasfaseranschluß vorhanden)
- Hochwertige Bodenbeläge
- Teilbereiche mit Glastrennwänden und Glastüren
- Betonrohdecken für einen modernen Look mit integrierter Betonkerntemperierung
- Zentrale mechanische Be- und Entlüftung der Büroflächen
Freie Mietflächen im Paulihaus.
Markante Ecklage mit hoher Visibilität und viel Tageslicht
- Mietfläche: ca. 260 m²
- Besonderheit: Verbindung mit EG 2 Fläche möglich
- Verfügbarkeit: ab sofort
- Mietpreis: auf Anfrage
- Provision: provisionspflichtig
- Lichte Raumhöhe: ca. 4,55 m
- Decke: Betondecke roh mit Sichtinstallation
- Bodenbelag: Estrich
- Sanitär: vorgerüstet
- Elektro: Starkstrom
- Lüftung: mieterseits
Charmante und vielseitig nutzbare Mietfläche
- Mietfläche: ca. 200 m²
- Besonderheit: Verbindung mit EG 1 Fläche möglich
- Verfügbarkeit: ab sofort
- Mietpreis: auf Anfrage
- Provision: provisionspflichtig
- Lichte Raumhöhe: ca. 4,55 m
- Decke: Betondecke roh mit Sichtinstallation
- Bodenbelag: Estrich
- Sanitär: vorhanden
- Elektro: Starkstrom
- Lüftung: mieterseits
Attraktive Café-Fläche mit breiter Fensterfront
- Mietfläche: ca. 186 m²
- Verfügbarkeit: ab sofort
- Mietpreis: ab 20,00 €/m2
- Provision: provisionspflichtig
- Lichte Raumhöhe: ca. 3,50 m
- Deckensegel: Baffeldecke
- Beleuchtung: LED-Lichtleisten
- Sanitär: vorhanden
- Küche: vorgerüstet
- Kühlung: vorhanden
- Abluft: vorhanden
Minimale Fläche, maximale Wirkung
- Mietfläche: ca. 47 m²
- Verfügbarkeit: ab sofort
- Mietpreis: ab 20,00 €/m²
- Provision: provisionspflichtig
- Lichte Raumhöhe: ca. 4,55 m
- Decke: Betondecke roh
- Bodenbelag: Estrich
- Sanitär: vorhanden
- Pantry: vorgerüstet
- Zuluft: Fassadenlüfter
- Abluft: über Lager/Küche und WC
Moderne Bürofläche sucht neuen Mieter
- Mietfläche: ca. 1.007 m²
- Mietpreis: ab 23,00 €/m²
- NK-Vorauszahlung: 4,50 €/m²
- Verfügbarkeit: ab sofort
- Flexible Grundrissgestaltung (Achsmaß 1,35 m)
- Hohlraumboden für flexible Verkabelung (Cat7 und Glasfaseranschluß vorhanden)
- Hochwertige Bodenbeläge
- Teilbereiche mit Glastrennwänden und Glastüren
- Betonrohdecken für einen modernen Look mit integrierter Betonkerntemperierung
- Zentrale mechanische Be- und Entlüftung der Büroflächen
Bezugsfertige Bürofläche mit flexibler Laufzeit
- Mietfläche: ca. 565 m²
- Mietpreis: ab 23,50 €/m²
- NK-Vorauszahlung: 4,50 €/m²
- Verfügbarkeit: ab sofort
- Flexible Grundrissgestaltung (Achsmaß 1,35 m)
- Hohlraumboden für flexible Verkabelung (Cat7 und Glasfaseranschluß vorhanden)
- Hochwertige Bodenbeläge
- Teilbereiche mit Glastrennwänden und Glastüren
- Betonrohdecken für einen modernen Look mit integrierter Betonkerntemperierung
- Zentrale mechanische Be- und Entlüftung der Büroflächen
Moderne Bürofläche mit Weitblick
- Mietfläche: ca. 1.022 m²
- Mietpreis: ab 26,00 €/m²
- NK-Vorauszahlung: 4,50 €/m²
- Verfügbarkeit: ab sofort
- Flexible Grundrissgestaltung (Achsmaß 1,35 m)
- Hohlraumboden für flexible Verkabelung (Cat7 und Glasfaseranschluß vorhanden)
- Hochwertige Bodenbeläge
- Teilbereiche mit Glastrennwänden und Glastüren
- Betonrohdecken für einen modernen Look mit integrierter Betonkerntemperierung
- Zentrale mechanische Be- und Entlüftung der Büroflächen